
以一杯奶茶为灵感,把那份温柔与平静融入装修设计之中,将这套80平米的两居室打造成一个四季舒适的小天地。

硬装上,解决了空间过于狭长的问题。开放式布局结合独特的材料和色彩点缀,不仅解决了收纳问题,还让家中的视觉更流畅。

软装不止于满足基本的收纳功能,更是将生活的艺术融入其中,使家的每个角落都充满温暖与惊喜。
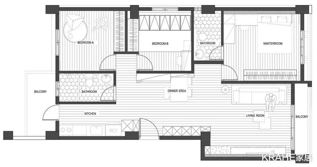
基本资料
108平米 / 3 房 2 厅 2 卫 / 现代风格
玄关设计
设计师用收纳柜确定了玄关的位置,解决了原来没有玄关的问题。他们还加了一块半透明的玻璃门板,给视觉上造成了一个转折点。
客厅设计
在客厅设计中,设计师巧妙地融合了理性和感性。
首先,通过直线和长方体的有序排列,为电视墙带来了一种理性美,让整个空间显得有条不紊。

而在沙发背后,则采用了弧线设计以及柔和的弧线灯具,平衡了空间中的直线感,增添了温馨和雅致的氛围。

此外,淡灰色调、格柵、木纹和水磨石等细腻的肌理被巧妙地运用,共同营造出富有艺术感的居住体验。
餐厨设计

餐厅位于整个房间的中心,因此在背墙设计上更要突显个性。用活泼的跳色点亮双眼,同时加入了圆拱、锥体等形状,营造出带有童趣感的北欧风格。


各个区域间的界限清晰,例如在进入厨房之前,电器柜微微凹陷,将玄关与餐厅隔开。还增加了一扇玻璃滑门,防止油烟扩散。


在墙上安装可折叠置物板,增加了收纳空间。房主再下厨时,不会担心空间不够用了。
主卧设计

清透的浅裸色系为主卧带来了宁静与舒适的氛围,波浪装饰板的点缀增强了光影效果,为整体空间增添了立体感和温暖。


梳妆台与饰品柜组合成L形布局,充分地利用了转角空间。化妆品、保养品等物品井然有序地摆放,一目了然。
客房设计
目前这个房间用作客房,未来也可以改造成儿童房。床下可以抬起,藏匿了收纳功能,可以存放各季节的床上用品和其他配件。


房主夫妻未来打算将这个房间当做孩子的游戏室。
由于整体缺乏采光,因此选择灰绿色、浅灰色来提升空间亮度,与白色和奶茶色为主的整体风格形成对比,也增添了一丝俏皮感。
卫浴设计
六角形的瓷砖铺满了墙面,上面精细的花纹点缀着优雅的图案,给人一种欧式古典的感觉。

搭配着窗户透进来的阳光,仿佛置身于西班牙乡村庄园,让每天的洗漱都变得悠闲而优雅。