游戏百科

这是我见过最巧妙,最会过日子的装修!预算不够设计来凑!60平老房硬生生被装成豪宅

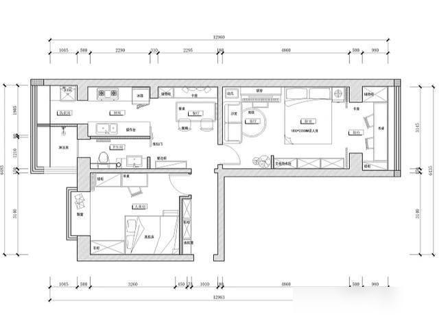
这是我见过最巧妙,最会过日子的装修!预算不够设计来凑!60平老房硬生生被装成豪宅,25万装修费值! 🏠看完真的佩服。53平的老房子,愣是装出了大平层的感觉。25万包含所有家电,这钱花得太值了。 💡原来房子是南北通透的双阳台,格局不错。但缺点也很明显,没大客厅,厨卫都小。北阳台还放了个灶台,显得很乱。 👍改造后完全不一样了。空间感觉大了好几倍,一点不压抑。每个角落都利用上了,一点没浪费。 🚪先说玄关。以前就是条过道,现在做了个大衣柜。包包钥匙鞋子都能收进去,出门回家都方便多了。小户型最怕东西没地方放。 🍳厨房改得真好。一边是灶台冰箱,另一边是操作台。一字形布局,两个人一起做饭也不挤。动线很合理。 👕北阳台分出一部分给厨房。放了洗衣机和干衣机。这个决定太聪明了,不用晾衣服,省出阳台空间。烘干机真是提升幸福感的好东西。 🍴餐厅和厨房挨着。做了卡座和大椅子,颜值高还省地方。朋友来家里吃饭肯定很舒服。 🎬客厅放了两人座沙发,还有钢琴和投影仪。瞬间变成家庭影院了。聚会的时候肯定氛围很好。 🛏️最绝的是主卧设计。主卧、客厅、书房几乎连成一体。用白沙帘挡住衣柜,若隐若现的,空间感一下就出来了。 📚主卧阳台改成书房,放了双人桌。两个人能同时办公。旁边还放了衣柜和花架,一点没浪费。 👶次卧是高低床,带个大飘窗。父母来或者客人来都有地方住。考虑得很周到。 🚽卫生间是经典的一字排开。洗漱台有80厘米宽,两个人同时用没问题。台下抽屉和镜柜很能装,东西收得整整齐齐。 🌟总结下来,亮点就是打通空间。客厅主卧书房一体化,显得特别大。干衣机解放了阳台,多了个书房。每个设计都冲着实用去的。 💰25万装出这效果,确实厉害。证明装修不一定要花大钱,关键看设计和规划。屋主肯定是花了很多心思的。 🔍这种老破小改造,给很多同样户型的人提供了思路。不怕房子小,就怕不会装。好的设计真的能改变生活品质。