游戏百科

120㎡稳重端庄的材质,安静舒适的设计,生活舒适又惬意

屋主是一对准备步入婚姻殿堂的90后环艺专业夫妻,对审美有一定要求;原户型为一套120平的四居室,夫妻二人常住,预留宝宝房

屋主是一对准备步入婚姻殿堂的90后环艺专业夫妻,对审美有一定要求;原户型为一套120平的四居室,夫妻二人常住,预留宝宝房间。屋主希望自己的家温馨、质感、不喜欢浅色调,同时改善原本房屋通风、采光不理想的现状。

户型图

▲原始户型图

◾入户和餐厅在一起,致鞋柜与餐厅储物柜冲突;◾厨房放置冰箱后操作台面不够用;◾客厅墙四门在一边,视觉杂乱无整体感;◾客厅朝北楼层低采光通风不佳。

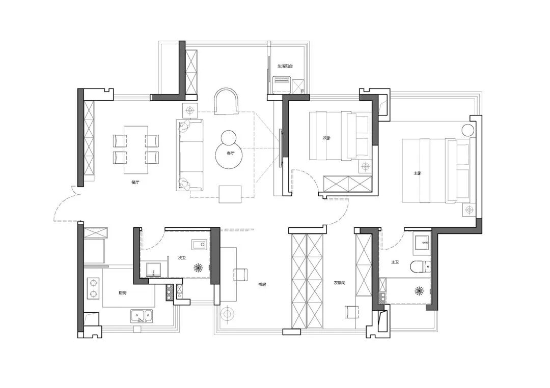
▲设计平面布置图

◾改变生活阳台位置,让厨房空间增大的同时还有合适的空间增添鞋柜。◾书房墙体改为透明玻璃门,半开放试书房形成,也很好地改善通风与采光。◾书房和衣帽间做靠背储物柜,省去砌墙成本,释放空间的同时满足储物需求。◾客厅阳台门拆除,阳台纳入客厅空间,客厅视觉更显大气。◾生活阳台移入客厅阳台原本凹进去位置,完善清洁功能;加上长虹玻璃门的设计又拓宽了电视墙的视野。

客厅

客厅家具定位和选材上,注重舒适体验;沙发的宽软可以让你独处,让你自由释放。

餐厅边柜开放式设计与白色百叶窗呼应,让餐厅变得更敞亮又舒心。随手可放一书一茶的不锈钢边几,让空间显得安静且质感。

繁忙的午后,沏一杯咖啡,看一本书,内心欢愉又充盈。

灰色系列地砖地毯的选择,让整屋和谐静谧。

不锈钢摆件,不锈钢椅子茶几,不锈钢巴塞罗那椅脚;

不锈钢材质深入整个深色基调中,显示着不张扬的质感。

高端的巴塞罗拉椅独有气质,点缀空间又与整体空间融为一体;

符合人体工程力学设计,无论是坐此工作与放松,都无疲乏感。

过道原本的厨房门、卫生间门、书房门我们用不同形式和材质的设计,让走廊看起来美观且整体感十足。原有厨房门去掉,让其空间开阔的同时采光变佳;

卫生间门作为木墙一部分,隐形且神秘;书房门双开玻璃门,拉宽整个公共区域视觉,也极大地改善了采光让整个房屋变得明亮起来。隐形的卫生间门,具有极简的视觉效果,却又增添了几分惊喜。

客厅无主灯的设计,增加了整个空间的亮度,彻底解决采光不佳的忧虑;符合极简要求,客厅更显大气利落。

一览无遗的客餐厅阳台通透视觉。

绸缎木整体电视墙提升客厅温度,与客厅无主灯设计结合,简洁且氛围感十足。

侧面看客餐厅,采光和空间尺寸也依然不错,餐厅百叶帘的设计,让整个横厅更加整体,同时也不占餐厅空间。

阳台规划入客厅,公共区域更加宽广;窗帘搭配窗纱让室内轻盈透气。静谧的玻璃杯,等待着主人们温暖的双手。

客厅电视墙与生活阳台拉通设计,让视觉更大,饰面板与黑框长虹玻璃搭配,富有更多质感和层次。

生活阳台门的长虹玻璃与客厅电视墙结合,不仅满足遮蔽杂物的功能还延展客厅空间。

通往主卧的无边框门尽显时尚与简洁;不冗余又讨喜。书房玻璃门的设计让书房同客厅可分可合,引入自然光的同时释放美感与层次。

餐厅

餐厅墙面定制悬空储物柜,满足收纳的同时又显得不呆板,具有很好的层次感。

入户门(专用漆)改为背景墙的同色系,使得原本看起来不和谐的墙面变得整体统一。岩板餐桌的选择,让质感更加明显又和谐。

空调风口置于餐边柜上方,让客厅视线更加宽敞。深色的餐厅背景配上暖色皮质沙发,点亮了空间,慵懒又不乏质感。客厅墙面黑白装饰画,似乎在安静地诠释着一切,生动不张扬。

书房

透过玻璃推拉门看向书房,尤为地通透。

整个房屋的设计简约、素雅而静谧,在灰色主调下,我们在书房中点缀了红色,让空间呈现出神秘的色彩美学。深色漆与灰色地砖、灰色柜子的搭配,让书房有严谨感受,也同时有屋主内心喜欢的色彩。

屋主对书柜要求要储物性强,设计以封闭柜门为主,小部分开放式柜体,放置个性化物件增加了空间情绪。

厨房

女主人追求深色质感,厨房也不例外,红色蒸锅点缀整个厨房,显得俏皮而温馨。

主卧

理想的休憩之所有千种表达,蓝色主导安静,无需过多装饰就能让人心神安宁,享受这独有的安静。静谧的深色背景可以让人安心地休息。

衣帽间

衣帽间与卧室贯通,方便主人们更换衣物;空间以封闭为主便于日常打理与清洁。

主卫

卫生间作为功能性空间,洗漱台、马桶、淋浴室置于同一空间,极好地将生活的便捷与艺术融合。