游戏百科

13米独立钢管避雷针接间采用插接形式

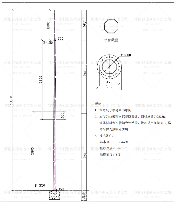
说明:1.本塔尺寸以毫米为单位。2.本图为13米独立钢管避雷针,钢材材质为Q235B。3.塔体材料为八棱钢卷管结构,接间

说明:

1.本塔尺寸以毫米为单位。

2.本图为13米独立钢管避雷针,钢材材质为Q235B。

3.塔体材料为八棱钢卷管结构,接间采用插接形式,塔体结构件为热镀锌防腐

4.技术条件:

基本风压:0.4kn/m²

覆冰厚度:8mm

地震烈度:8度

一、避雷针的核心工作原理

避雷针的工作并非 “避雷”,而是“引雷”,其原理基于尖端放电和接地导流两大核心:

尖端放电效应:避雷针顶部设计为尖锐形状,当雷电云层靠近时,尖端会聚集大量感应电荷,形成局部强电场。这一电场会提前与云层中的电荷发生 “中和”,若中和不充分,雷电会优先选择电场强度更高的避雷针尖端作为放电通道(即“引雷”),而非击中被保护对象。

接地导流作用:避雷针通过金属引下线(如铜缆、镀锌钢)连接至地下的接地装置(如接地极、接地网)。当雷电击中避雷针后,强大的雷电流会沿引下线快速传导至接地装置,再通过接地装置分散到大地中,避免电流在被保护对象上产生高电压或热效应,从而防止火灾、设备损坏或人员伤亡。

二、避雷针的主要类型

根据材质、结构及应用场景的不同,避雷针可分为以下几类,各类特点差异显著:

类型

核心材质

优势

适用场景

独立钢管避雷针

镀锌钢管(或不锈钢管)

结构坚固、抗风能力强、使用寿命长

开阔场地(如变电站、油库、露天堆场)、高大建筑周边

玻璃钢避雷针

玻璃钢(外层绝缘)+ 内部金属芯(如铜芯)

重量轻、耐腐蚀性强(抗酸碱)、绝缘性好

化工厂区(高腐蚀环境)、通信塔、轻型构筑物

提前放电避雷针

金属尖端(含触发装置)

放电时间比普通避雷针提前 10-20 微秒,保护范围更大

对防雷要求极高的场所(如数据中心、博物馆、机场)

屋顶短针避雷针

镀锌圆钢 / 扁钢

体积小、安装灵活、成本低

建筑物屋顶(如住宅、办公楼)、小型设备平台

三、避雷针的关键组成部分

一套完整的避雷针系统并非单一 “针体”,而是由3个核心部分组成,缺一不可:

接闪器:即避雷针的 “尖端部分”,是直接接收雷电的部件,需满足导电性能好、耐腐蚀的要求(如镀锌钢、铜合金),形状通常为尖针状、圆球状(特殊场景)。

引下线:连接接闪器与接地装置的导电通道,需选用截面积足够的金属导体(如≥25mm²的铜缆、≥50mm²的镀锌钢),且需避免弯折、破损,确保雷电流顺畅传导。

接地装置:将雷电流导入大地的 “最终出口”,通常由接地极(如镀锌钢管、铜棒,埋深≥0.8m)、接地网(多根接地极并联)及接地母线组成,要求接地电阻≤10Ω(特殊场景如变电站需≤4Ω),否则会导致雷电流无法有效散流,引发反击事故。

四、避雷针的维护要点(通用版)

避雷针需定期维护,否则可能因部件老化、损坏导致防雷失效,维护周期建议为每半年 1 次常规检查,每年1次全面检测,核心要点如下:

接闪器检查:

查看针体是否有锈蚀、变形、断裂(尤其是钢管避雷针),玻璃钢避雷针需检查外层绝缘是否破损、内部金属芯是否裸露。

清除针体上的杂物(如鸟巢、灰尘),避免影响尖端放电效果。

引下线检查:

检查引下线是否松动、脱落,连接处(如螺栓、焊接点)是否锈蚀,若有锈蚀需除锈后重新紧固或焊接。

避免引下线与其他金属构件(如水管、电缆)直接接触,防止雷电流 “反击”。

接地装置检查:

测量接地电阻(使用接地电阻测试仪),若电阻超标(如>10Ω),需排查接地极是否锈蚀、接地网是否断裂,必要时增补接地极或更换接地材料。

检查接地极周围是否有积水、土方开挖(避免接地极暴露),接地母线是否被碾压、破损。

特殊场景维护:

化工、沿海地区(高腐蚀环境):需缩短维护周期(每 3 个月1次),重点检查部件耐腐蚀情况,可采用涂覆防腐涂料(如环氧富锌漆)延长寿命。

多雷地区(如山区、高原):每次雷雨季后需额外检查,排查是否有雷击导致的部件损伤。