游戏百科

11米八棱钢卷结构避雷针图纸

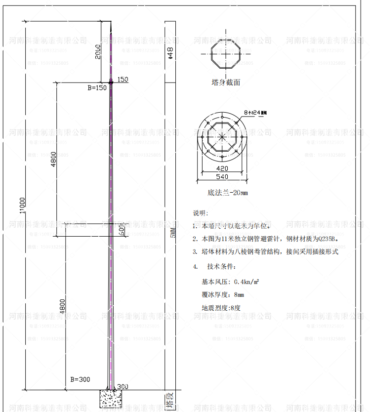
说明:1.本塔尺寸以毫米为单位。2.本图为11米独立钢管避雷针,钢材材质为Q235B。3.塔体材料为八棱钢卷管结构,接间

说明:

1.本塔尺寸以毫米为单位。

2.本图为11米独立钢管避雷针,钢材材质为Q235B。

3.塔体材料为八棱钢卷管结构,接间采用插接形式,塔体结构件为热镀锌防腐

4.技术条件:

基本风压:0.4kn/m²

覆冰厚度:8mm

地震烈度:8度

主要优势与局限性

1. 核心优势(对比传统金属避雷针)

超强耐腐蚀性:玻璃钢主体不导电、不生锈,能耐受海边高盐雾、化工区酸碱气体、高湿度土壤等腐蚀环境,使用寿命可达 20-30 年(传统镀锌钢管避雷针在沿海环境中5-8年即需更换)。

重量轻、易安装:玻璃钢密度仅为钢材的 1/4-1/5(如10m高避雷针重量约50kg,金属避雷针约200kg),无需大型吊装设备,可人工搬运安装,尤其适合屋顶、铁塔等承重有限的场景。

绝缘性好,无反击风险:玻璃钢主体为绝缘材料,与被保护设备(如变电站设备、通信天线)的安全距离可大幅缩小(传统金属避雷针需≥5m,玻璃钢避雷针可缩小至2-3m),避免雷击时因“反击”击穿设备。

造型灵活:可根据需求定制成圆柱型、锥形等形状,表面可涂覆不同颜色(如与建筑外墙匹配),兼顾防雷功能与美观性。

2. 局限性

机械强度低于金属:玻璃钢抗冲击性较弱,若遭受强风、冰雹或外力撞击(如高空坠物),易出现裂纹或断裂,需避免在多强风、多冰雹的极端环境中单独使用(可搭配防护套)。

耐高温性有限:普通玻璃钢长期工作温度不超过 120℃,若用于高温环境(如烟囱附近、冶金厂区),需选用耐高温树脂(如酚醛树脂)制作主体,成本较高。

导电芯易隐藏故障:内置导电芯若因安装不当(如接头松动)或老化(如树脂收缩导致芯体接触不良)出现问题,难以通过外观发现,需依赖专业检测。

三、适用场景

玻璃钢避雷针的优势使其在特定环境中成为首选,主要适用场景包括:

沿海地区:如港口、码头、海洋平台等,高盐雾环境下可避免金属腐蚀。

化工与冶金厂区:如化工厂、化肥厂、电镀车间等,耐酸碱气体腐蚀,保护设备安全。

屋顶与轻型建筑:如轻钢厂房、光伏电站屋顶、通信基站等,重量轻、对建筑承重要求低。

高绝缘需求场景:如变电站、高压输电线路塔、雷达站等,避免反击击穿精密电气设备。

腐蚀性土壤区域:如沼泽地、盐碱地等,接地装置可搭配玻璃钢保护管,进一步提升防腐效果。

四、关键设计与安装要求

1. 设计核心要求

接闪器规格:针尖长度≥150mm,材质选用T2紫铜或304不锈钢,确保接闪效率;若避雷针高度超过12m,需在主体中部增设防风支撑(如角钢支架),防止倒伏。

导电芯选型:导电芯截面积需根据雷电流计算(通常≥50mm²铜棒),接头处需做镀锡处理,并用导电胶密封,防止潮气侵入导致接触不良。

接地电阻:与传统避雷针一致,独立接地装置的工频接地电阻在非高土壤电阻率地区≤10Ω;若用于强腐蚀环境,接地极建议选用铜包钢材料(厚度≥0.2mm铜层),延长使用寿命。

安全距离:玻璃钢主体与被保护物的水平距离≥2m,与架空电线、电缆的距离≥3m,避免雷击时产生感应过电压。

2. 安装规范

主体安装:需垂直固定,垂直度偏差≤3‰,底部通过法兰盘与混凝土基础连接(法兰盘需做防腐处理,螺栓采用不锈钢材质),基础深度≥1.5m(冻土层以下),防止冬季冻胀导致倾斜。

导电芯连接:内置导电芯与接地引下线的焊接处需做 “三防处理”(防锈漆+防水胶+绝缘胶带),引下线选用铜缆(截面积≥25mm²),避免与玻璃钢主体直接接触(可穿PVC管隔离)。

密封处理:接闪器与玻璃钢主体的连接处、导电芯穿出底部的位置,需用硅橡胶密封圈或环氧树脂密封,防止雨水、潮气进入内部腐蚀导电芯。