游戏百科

140㎡的家,不做任何豪华装饰,却有藏不住的高级感

太多装饰造型不仅预算支出高,还会影响后续居住体验。相信不少朋友已经体验过了,装修期间被忽悠做了很多造型设计,最后才知道有

太多装饰造型不仅预算支出高,还会影响后续居住体验。相信不少朋友已经体验过了,装修期间被忽悠做了很多造型设计,最后才知道有多坑。其实简约高级,才是最理想的装修效果。视觉冲击力虽然不强烈,但适合居家生活。

像本期分享的案例就是如此,坐标南京,房屋面积140㎡,装修上以现代简约风为主轴,在满足各种功能前提下,不做任何豪华装饰,让空间有了余裕,可以更好的享受居家生活,接纳亲密又各自独立的家人。

原始结构图

承重墙较多,大刀阔斧的改动,并不适合当前户型,只能细致观察空间问题,挖掘空间潜力。比如厨房宽度不够,如果设计才能让日常使用更舒适。其次两个卫生间面积都很有限,居住人数较多,如何更全面发挥功能。最后还需要注意,入户门对着卫生间门的问题。

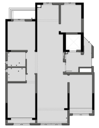
装修平面图

一梯一户的住宅,把落尘区建立在入户门外,避免占用室内空间。其次对两个卫生间进行调整,除了确保功能齐全外,还增加了一道隔断设计,这样就不会对着入户门了。厨房外扩,提高收纳空间,定制电器高柜,同步设计玻璃折叠门,阻隔油烟增加通透效果。

玄关

推门而入,由于隔断墙的设计,一改原有入户门对着卫生间的格局,规避了风水忌讳,同时也让客餐厅更加的连贯。落尘区建立在入户门外,不占用室内空间,让整体布置更加宽松。

客厅

客厅墙面以水泥漆为主,以清水气质与斑驳肌理,包裹沉着静谧和细腻高级。视觉感受虽然不是很强烈,但柔和的既视感,却可以将情绪抻平。墙面肌理的粗粝毕现,通过光线传递的变化,变成自然装饰。

电视背景墙,以光滑洁净的表面呈现。白色的背景墙与粗粝毕现的沙发墙,形成强烈的对比感,让空间更显大气。电视背景墙,推敲比例自然留缝,让卧室隐形门很好地融入墙面,不显突兀。由于卧室地面被抬高,利用大理石地台平整衔接,消弭进出困扰。

餐厅

餐厅简单实用,线性趣味慢慢地渗透到空间印象。收纳集中在餐厅右侧,恰当的柜子体量,不影响居家动线。储物柜兼具收纳和陈列两种功能,灵活性更高。柜子表明平整无装饰,加上弧形设计弱化边角尖锐,视觉圆润,安全性也更高。

餐厨利用玻璃材质隔断,折叠样式尽力在视野中消失,直接延伸出通透感。

厨房

原本厨房比较紧凑,装修做了外扩设计,同步建立电器高柜,增加收纳让厨房更整洁。U型厨房布局,很好地关照了一系列的做饭步骤和顺序,充裕的操作台空间,将洗切炒的动线密切串接起来。附加的吧台功能,提高了厨房的互动效果。

与厨房相邻的休闲区域,做了抬高设计,大理石台阶增加步入式体验感。长虹玻璃推拉门设计,透光不透私效果很赞。推拉门设计很灵活,不需要的时候可以完全隐藏在墙体后面,不影响美观。

主卧

主卧简净基调,以深色系列打造素雅风,不矫饰,不浮夸。木质建材包裹窗口轮廓,窗边收纳以及矮柜和梳妆台,务实而真挚。

床头背景一分为二,墙漆与木饰面结合,拉伸出空间层次感。暖色的隐藏灯光设计,烘托慵懒的氛围。不对称的床头灯设计,增加了些许活泼气息。

次卧

装修精简其形式和功能,低饱和度的色彩和舒适耐用的家具,更贴合实际生活需求。

飘窗台与地柜组合,搭配高弹软垫,久坐也能有舒适的体验。

儿童房

儿童房童趣十足,睡眠区采用半高波浪板围裹,粉色多了几分少女感。家具都以儿童家具为主,更适合当下的使用需求。

小小的立柜可以提供清晰的收纳规划,藤编的柜门兼顾了防尘与透气效果。

学习与玩耍空间,全套实木材质的书桌、椅子、书架和储物柜,安全性更高。精致小巧的外观造型,也更符合小朋友的使用需求。

卫生间

入墙式水龙,将供水管件藏在墙体内部,节省空间,台面位置也被释放出来。黑白灰色彩的运用,让卫生间更显简洁大气。

以上就是这期案例分享,简约的装修设计,不仅满足了基础功能,又让居家空间有了余裕。不做任何豪华装饰,利用色彩与材质提升居家品质,还是非常值得借鉴的。如果是你,会如何选择呢?